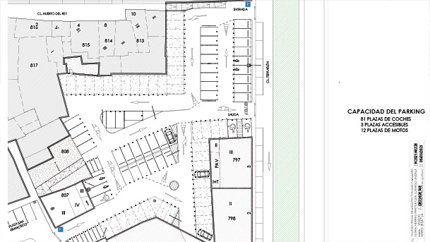
El parking de la calle Terraplén de Tudela dispondrá a finales de verano de 84 plazas de aparcamiento para turismos (tres de ellas serán para personas con movilidad reducida) y de otras 12 para motocicletas. Además contará con la preinstalación para carga de coches eléctricos en cuatro plazas (ahora mismo dispone en dos de ellas).
Así lo ha confirmado el concejal del área de Desarrollo Urbano Sostenible, Zeus Pérez, después de que el Ayuntamiento de Tudela aprobara este viernes 9 de abril en Junta de Gobierno sacar a licitación las obras de ampliación de esta zona de aparcamiento por un importe de 188.055 euros.
La empresa Albarrada Proyectos y Obras ha sido la encargada de redactar el proyecto de demolición y obras de ampliación del parking de la calle Terraplén que actualmente ocupa una superficie de 1.600 metros cuadrados y cuenta con 60 plazas para coches (dos de ellas para personas con movilidad reducida) y 4 para motos.

Pérez ha apuntado que las obras, que se prolongarán por espacio de 90 días, se centrarán en la demolición y limpieza de una parcela anexa al actual parking, con una superficie total de 757 metros cuadrados, y en la posterior ejecución de redes de servicios afectados y la correspondiente pavimentación y marcaje de todas las zonas de aparcamiento.
Asimismo, está previsto instalar un sistema de control de estacionamiento e información de plazas a los usuarios. En este sentido, el concejal del Área de Desarrollo Urbano Sostenible, explicó que se colocará un panel en el paseo de Pamplona que indicara las plazas que hay disponibles en cada momento.
Los trabajos que se llevarán a cabo en la zona también contemplan la repavimentación de la calle Terraplén (conectará con la segunda fase de obras del Paseo Pamplona, que el Ayuntamiento tiene previsto adjudicar en breve) y la iluminación de todo el parking.
Tras la ampliación esta nueva zona de aparcamiento tendrá entrada desde las calles Terraplén y Santiago, si bien la salida se realizará única y exclusivamente por la primera de estas calles, como hasta ahora.
Cabe recordar que a finales de 2020, el Ayuntamiento aprobó en un pleno extraordinario la compra de un edificio en la calle Santiago número 1 (frente al cuartel de Sementales por 194.144 euros. Esta adquisición permitirá derribarlo ahora y adecuar el solar para ampliar el parking en 24 plazas más.
El aparcamiento de la calle Terraplén se inauguró en septiembre de 2019, si bien se comenzó a usar ya durante las fiestas patronales de ese mismo año. Su coste ascendió a 71.000 euros, de los que la mitad fueron sufragados con fondos europeos.
